Rif: 1525
MILANO
MILANO - zona Corvetto
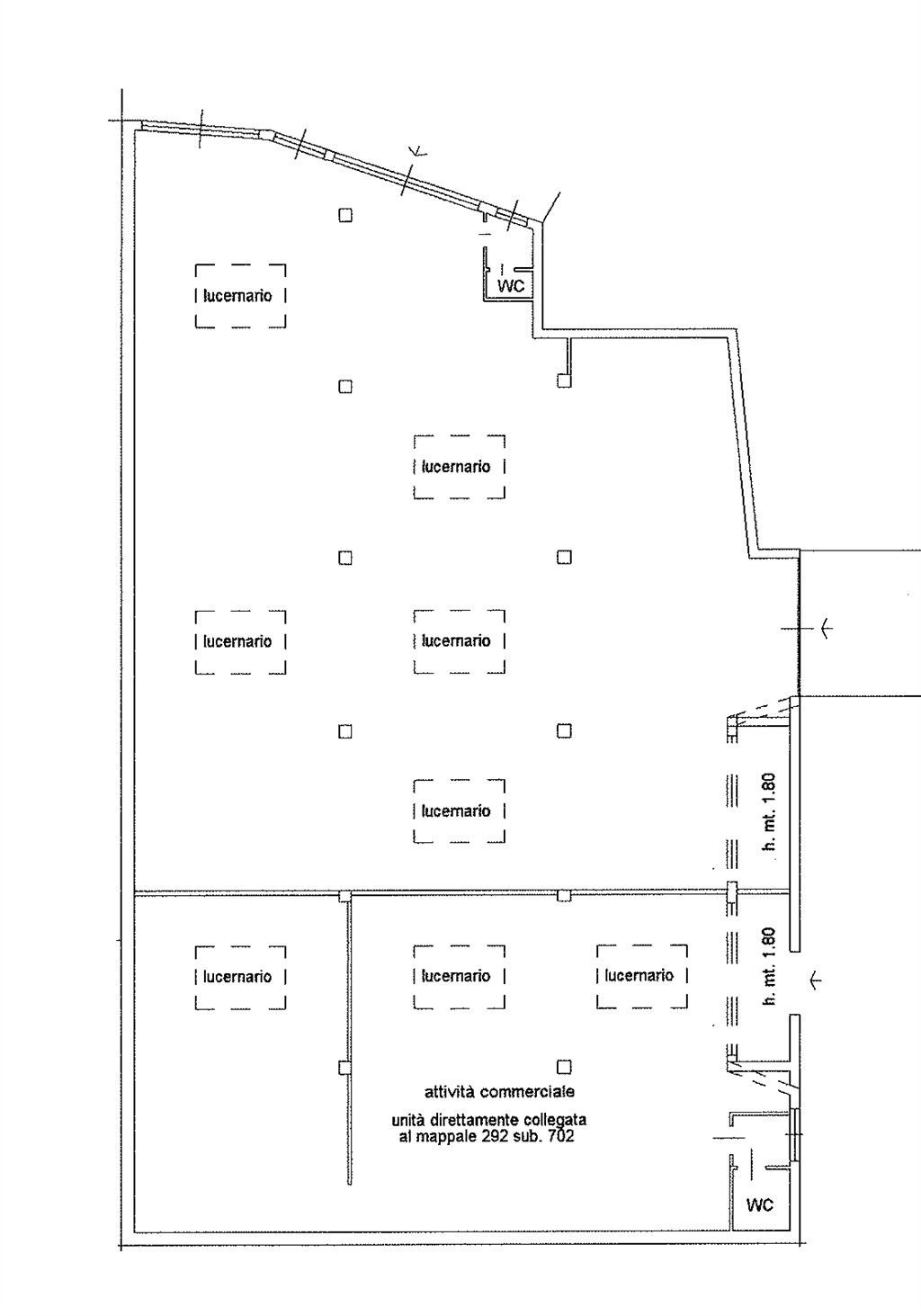
Piazza Bonomelli - Via Romilli: proponiamo in locazione capannone di mq 470 ca. altezza m 3,40 con servizi e due accessi carrai.
L'immobile è in buone condizioni e luminoso grazie a cinque ampi lucernai.
Possibili altri lotti all'interno dello stesso complesso.
La zona è bene servita dai mezzi pubblici: M3 fermata Brenta, Autobus 65-34.
L'immobile è in buone condizioni e luminoso grazie a cinque ampi lucernai.
Possibili altri lotti all'interno dello stesso complesso.
La zona è bene servita dai mezzi pubblici: M3 fermata Brenta, Autobus 65-34.
Consistenze
| Descrizione | Superficie | Sup. comm. |
|---|---|---|
| Principali | ||
| Capannone - piano terra | 470 Mq | 470 Mqc |
| Totale | 470 Mqc | |
